Erstbezug! Exklusive 2-Zimmer Dachterrassenwohnung in Maishofen
Objektdaten
PLZ: 5751
Baujahr: 2025
Zustand: Erstbezug
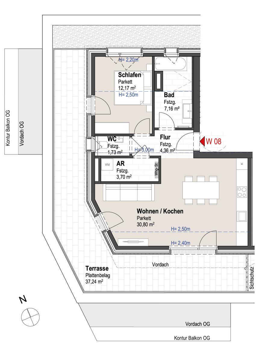
Terrasse: 37.24 m²
Parkplatz: Tiefgarage
Objektdetails
Wohnfläche: 59.92 m²Barrierefrei: Ja
Schlafzimmer: 1
Lift: 1
Heizung: Luftwärmepumpe mit PV-Anlage
Heizungsart: Fußbodenheizung
Boden: Parkett, Fliesen
Küche: Einbauküche
Bad: Dusche, Badewanne
HWB: 37
fGEE: 0.68
Provisionsfrei: Ja
Kaution: 4740
Bilder
Freuen Sie sich auf ein modernes Zuhause, das durch helle Wohnräume und hochwertiger Ausstattung besticht. Die 2-Zimmer Dachgeschosswohnung mit ihrer 37 m² großen Dachterrasse verspricht pures Wohnvergnügen! Eine durchdachte Raumplanung, Großzügige Fensterflächen und exklusive Ausstattungselemente schaffen eine überaus angenehme Wohnatmosphäre.
Wohnvergnügen im Überblick:
- exklusive 2-Zimmer Dachgeschosswohnung mit ca. 60 m² Wohnfläche im Erstbezug
- ca. 37 m² Dachterrasse mit herrlichem Ausblick
- 1 Tiefgaragenstellplatz und 1 Kellerabteil
- zentrale und naturverbundene Lage
- hochwertige Einbauküche mit allen Elektrogeräten
- stilvoller Parkettböden und moderne Fliesen
- Badezimmer mit bodengleicher Dusche und Badewanne, WC separat
- einzelraumregulierte Fußbodenheizung, bedarfsgerechte Wohnraumbelüftung, Videosprechanlage
- Luft-Wärmepumpe und Photovoltaikanlage
- Lift, Waschküche, Spielplatz
Miete:
Miete Wohnung und 1 TG-Platz: € 1.580 mtl. inkl. Betriebskosten zzgl. Strom
Kaution: 3 BMM
Mietvertragserrichtungsgebühr: € 300,- (inkl. 20 % USt.)
Bezug: ab 01.12.2025
Wir bitten um Verständnis, dass seitens des Eigentümers das Rauchen sowie das Halten von Haustieren in dieser Wohnung nicht erlaubt ist.
Zentral und naturverbunden leben
Maishofen überzeugt mit außergewöhnlicher Wohn- und Lebensqualität. Umgeben von Natur und dennoch zentral im Pinzgau gelegen, profitieren Sie von einer hervorragenden Infrastruktur und kurzen Wegen nach Zell am See, Saalfelden und Saalbach. Ein idealer Wohnort für aktive Genießer und Naturliebhaber.
Nähere Informationen und Besichtigungen
Für alle weiteren Informationen und Besichtigungstermine stehen wir Ihnen unter +43 (0)6582 70203 und verkauf@lwb.at sehr gerne zur Verfügung.
Selbstverständlich ist unsere Tätigkeit vorab kostenlos und vorspesenfrei. Bei Zustandekommen eines rechtskräftigen Mietvertrages erhalten wir die angegebene Mietvertragserrichtungsgebühr. Irrtümer vorbehalten.
Nähere Informationen zu diesem Objekt



