2-Zimmer Terrassenwohnung in unmittelbarer Seenähe
Objektdaten
PLZ: 5700
Baujahr: 2006
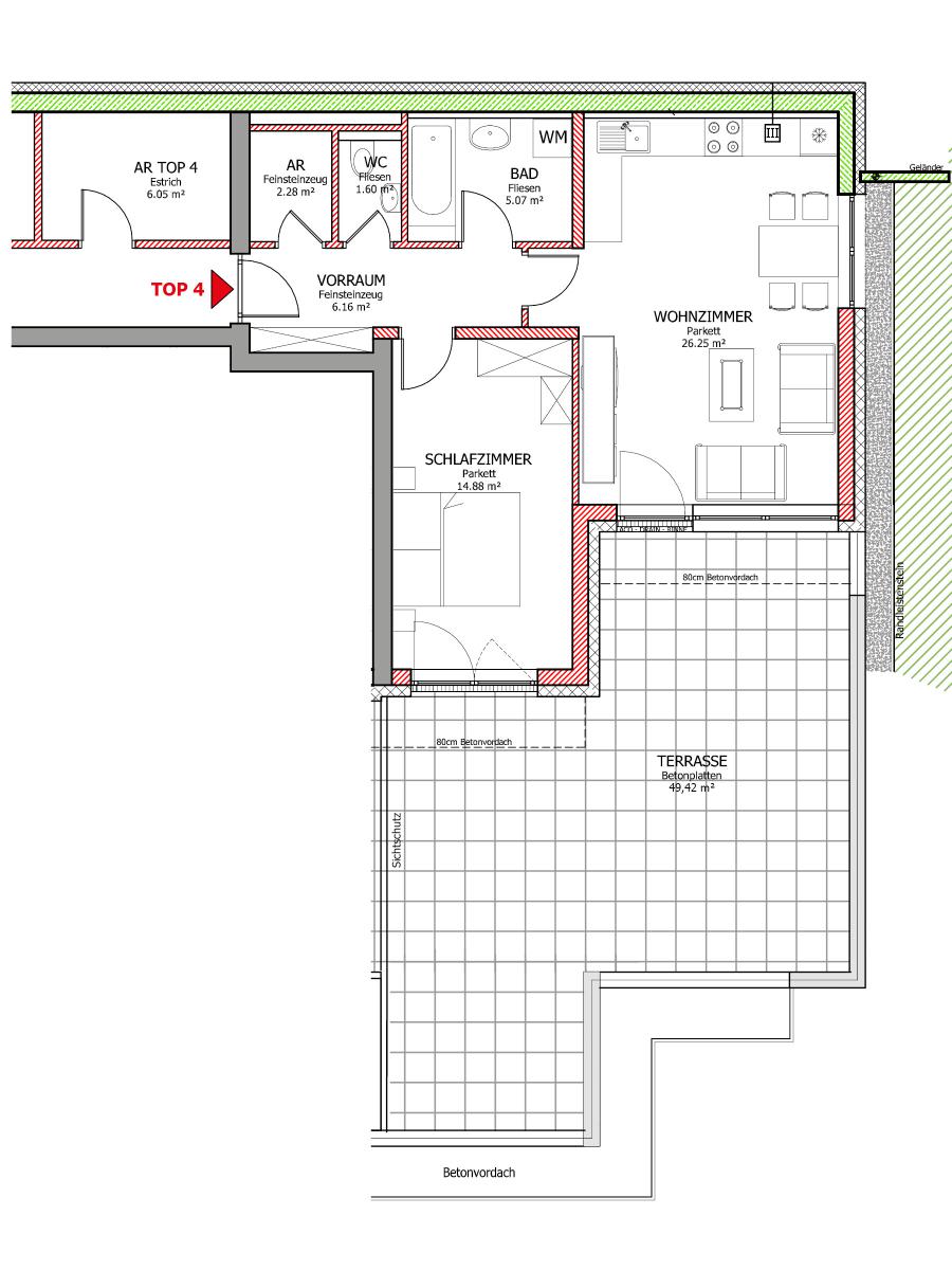
Terrasse: 49 m²
Parkplatz: Tiefgarage
Objektdetails
Wohnfläche: 56 m²Schlafzimmer: 1
Lift: 1
Fahrradraum: 1
Kellerfläche: 6 m²
Heizung: Pelletsheizung
Heizungsart: Fußbodenheizung
Boden: Parkett, Fliesen
Küche: Einbauküche
Bad: Badewanne
HWB: 53
fGEE: 0.68
Maklerprovision: 3% des Kaufpreises zzgl. 20% USt.
Bilder
Wohnen in Seenähe mit herrlichem Bergpanorama
Diese Terrassenwohnung verbindet modernes Wohnen mit einem besonderen Ausblick: Der Blick öffnet sich in Richtung Zeller See auf die umliegende Bergwelt – ein Panorama, das den Alltag spürbar aufwertet. Sonne, See und Berge liegen hier zum Greifen nah – und Sie mittendrin!
Ausstattung & Highlights:
- 2-Zimmer Eigentumswohnung in begehrter Wohnlage – nur einen Katzensprung vom Zeller See entfernt
- 49 m² große Terrasse mit Südwest-Ausrichtung
- herrlicher Blick auf das Bergpanorama
- sehr gute Raumaufteilung und offenes Wohnkonzept
- helle Wohnräume dank großzügiger Fensterflächen
- Parkettboden und Fußbodenheizung
- schöne Einbauküche
- 1 Tiefgaragenstellplatz und ein separater Abstellraum vor der Wohnung
- Fahrradraum sowie Wasch- und Trockenraum zur allgemeinen Nutzung
- hohes Freizeitangebot zu jeder Jahreszeit
Das Highlight dieser Wohnung ist die 49 m² große Südwest-Terrasse, die den Wohnraum nach außen erweitert und zu jeder Tageszeit einen attraktiven Aufenthaltsort bietet. Ob Sonnenaufgang, Nachmittagssonne oder die Abendstimmung über den Bergen – dieser Außenbereich wird schnell zum Lieblingsplatz.
Kaufpreis Wohnung: € 365.000,-
Kaufpreis Tiefgaragenstellplatz: € 25.000,-
Kaufpreis gesamt: € 390.000.-
Top Wohnlage in Zell am See - Thumersbach
Die Wohnung befindet sich im Zeller Ortsteil Thumersbach an der Uferstraße und nur wenige Gehminuten vom See entfernt. Ein kleiner Nahversorger mit Trafik sowie Gast- und Kaffeehäuser liegen in direkter Nähe. Die Stadt Zell am See ist das Herzstück der weltweit bekannten Urlaubsdestination Zell am See - Kaprun. Zell am See steht zu jeder Jahreszeit für außergewöhnlich hohe Lebensqualität. Skifahren und Snowboarden auf über 140 Pistenkilometern, Golfen, Wandern, Biken oder Wassersport – das vielseitige Freizeitangebot lässt keine Wünsche offen. Der kristallklare Zeller See und die schneebedeckten Bergspitzen prägen das Landschaftsbild und machen Thumersbach zu einer der begehrtesten Wohnlagen der Region.
Nähere Informationen und Besichtigungen
Lassen Sie sich von den vielen Vorzügen dieser Immo bilie begeistern! Für alle weiteren Informationen und Besichtigungstermine steht Ihnen Michael Leitgöb unter +43 (0)6582 70203 und verkauf@lwb.at sehr gerne zur Verfügung.
Selbstverständlich ist unsere Tätigkeit vorab kostenlos und vorspesenfrei. Bei Zustandekommen eines rechtskräftigen Kaufvertrages erhalten wir die tarifmäßige 3%ige Vermittlungsprovision zuzüglich 20% USt. Irrtümer vorbehalten.
Nähere Informationen zu diesem Objekt














