Mattsee "SEENSWERT" W7
Objektdaten
PLZ: 5163
Balkon: 18.46 m²
Parkplatz: Tiefgarage
Objektdetails
Wohnfläche: 91.91 m²Schlafzimmer: 3
Anzahl Balkone: 2
Lift: 1
Kellerfläche: 8 m²
Heizung: Fernwärme
Heizungsart: Fußbodenheizung
Boden: Parkett, Fliesen
Küche: Geräteanschlüsse vorhanden, Wasseranschlüsse vorbereitet
Bad: WC separat, Duschbadewanne, Handtuchheizkörper
Allgemein: Raffstore-Beschattungssystem, bedarfsgerechte Wohnraumbelüftung
Provisionsfrei: Ja
Bilder
Zuhause im Naturparadies
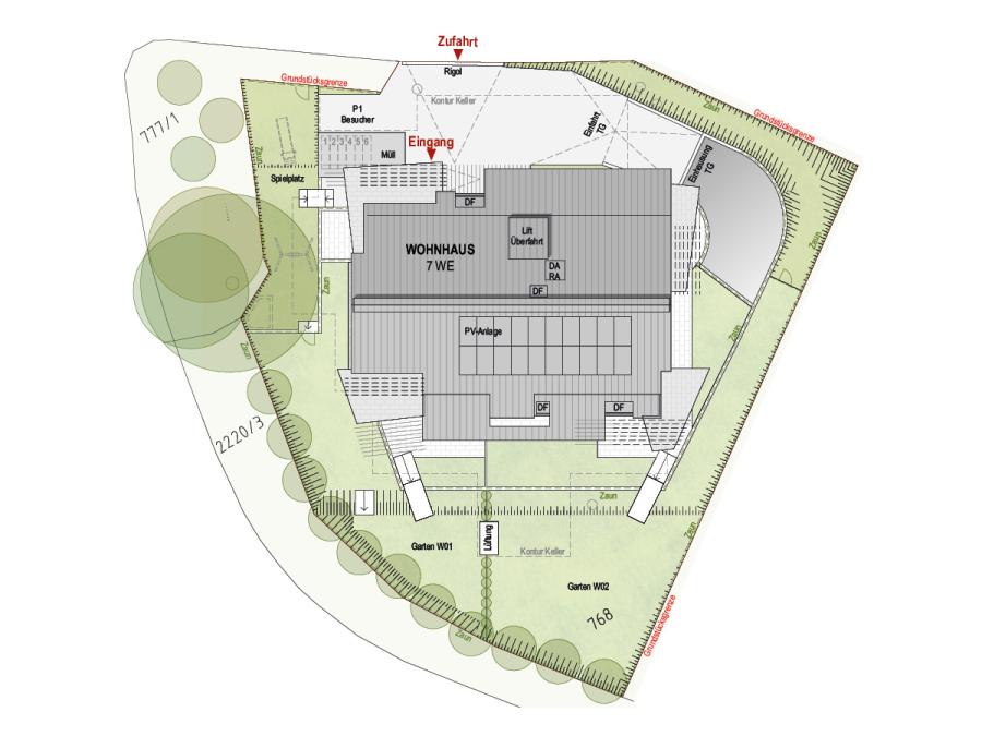
Nur wenige Gehminuten vom See entfernt realisieren wir von Leitgöb Wohnbau Ihr neues Zuhause. Die moderne 4-Zimmer Wohnung mit zwei großen Balkonen überzeugt durch hochwertige Ausstattung und verspricht pures Wohnvergnügen. Sowohl die stilvolle Architektur und nachhaltige Bauweise als auch das helle Wohlfühlambiente werden Sie begeistern.
Wohnvergnügen im Überblick:
- attraktive 4-Zimmer Eigentumswohnung mit ca. 92 m² Wohnfläche
- 2 Balkon-Terrassen
- top Ausstattung: Eichenparkettböden in den Wohn- und Schlafräumen, einzelraumregulierte Fußbodenheizung, moderne Sanitärausstattung, dreifach Isolierverglasung, bedarfsgerechte Wohnraumbelüftung, Video-Sprechanlage
- Fernwärme und Photovoltaikanlage
- Tiefgarage, Lift, Spielplatz
- sonnige und zentrale Lage, nur wenige Gehminuten zum See, hoher Freizeitwert
- Bezug in Kürze möglich! Gestalten Sie Ihr neues Zuhause nach Ihren Wünschen: Böden, Wandfliesen und Badelemente sind noch individuell wählbar
Entscheiden auch Sie sich für Ihre Traumwohnung aus erster Hand von Leitgöb Wohnbau!
Kaufpreis W7: € 756.860-
Kaufpreis 1 Duplex-TG: € 34.900,-
Kaufpreis gesamt: € 806.860,-
.
Traumhaft Wohnen im Seenland
Nur 20 km vom Zentrum der Landeshauptstadt Salzburg liegt die Marktgemeinde Mattsee umrundet von Mattsee, Obertrumer See und Grabensee im Herzen des Flachgaus. Dank der sehr guten Lage erreichen Sie den Ortskern und den Mattsee in wenigen Minuten bequem zu Fuß.
Einkaufsmöglichkeiten, Volks- und weiterführende Schulen liegen nahezu vor Ihrer Haustür und neben wunderschönen Plätzen am See, bietet Ihnen der malerische Ort durch seine große Vielfalt an Sport- und Freizeitangeboten eine besonders hohe Lebensqualität.
Gleich unverbindlich informieren
Vereinbaren Sie noch heute einen unverbindliche Beratungstermin unter +43 (0)662 88 22 13 oder nutzen Sie das Anfrageformular.
Traumhaft Wohnen im Seenland
Nur 20 km vom Zentrum der Landeshauptstadt Salzburg liegt die Marktgemeinde Mattsee umrundet von Mattsee, Obertrumer See und Grabensee im Herzen des Flachgaus. Dank der sehr guten Lage erreichen Sie den Ortskern und den Mattsee in wenigen Minuten bequem zu Fuß.
Einkaufsmöglichkeiten, Volks- und weiterführende Schulen liegen nahezu vor Ihrer Haustür und neben wunderschönen Plätzen am See, bietet Ihnen der malerische Ort durch seine große Vielfalt an Sport- und Freizeitangeboten eine besonders hohe Lebensqualität.
Nähere Informationen zu diesem Objekt














