Erstbezug: Exklusive Penthouse-Wohnung in Neukirchen
Objektdaten
PLZ: 5741
Zustand: Erstbezug, belagsfertig
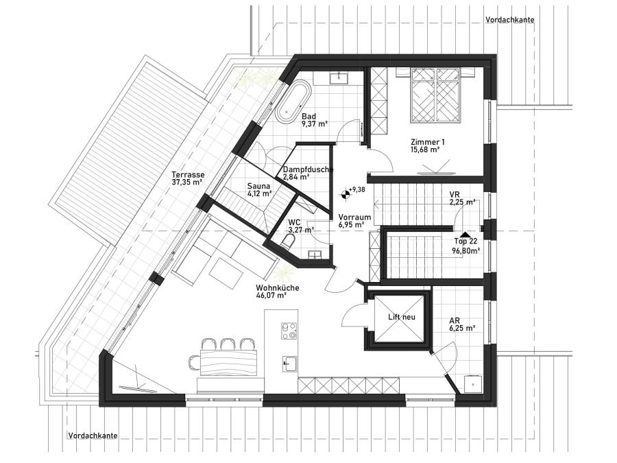
Terrasse: 37.35 m²
Parkplatz: Tiefgarage, Freiplatz
Objektdetails
Wohnfläche: 96.8 m²Schlafzimmer: 1
Lift: 1
Kellerfläche: 8.08 m²
Heizung: Fernwärme, PV-Anlage
Heizungsart: Fußbodenheizung
Küche: Anschlüsse vorbereitet
Allgemein: Raffstore-Beschattungssystem
HWB: 29
fGEE: 0.76
Maklerprovision: 3% des Kaufpreises zzgl. 20% USt.
Bilder
Exklusives Wohnvergnügen mit traumhaftem Panoramablick
Diese exklusive Penthouse-Wohnung befindet sich in zentraler Sonnenlage in der Nationalparkgemeinde Neukirchen am Großvenediger und eröffnet einen traumhaften Panoramablick auf die umliegende Bergwelt. Das hochwertig errichtete Wohnhaus überzeugt durch moderne Architektur, sehr gute Bauqualität und eine äußerst attraktive Lage im Herzen einer überaus beliebten Urlaubsdestination.
Ausstattung & Highlights
- zentrale Sonnenlage mit traumhaftem Panoramablick auf die umliegende Bergwelt
- großzügige Wohnfläche von 96 m²
- 37 m² große Dachterrasse mit Südwest-Ausrichtung
- Lift direkt in die Wohnung
- Innenausbau noch frei wählbar – Gestaltung nach Ihren persönlichen Vorstellungen (Fertigstellungsgrad: belagsfertig)
- großer, offener Wohn-/Koch- und Essbereich mit Panoramafenstern, Kaminanschluss und einer großzügigen Raumhöhe
- alpine Holztramdecke für ein einzigartiges Wohngefühl
- Räume für Sauna und Dampfdusche – privater Wellnesskomfort im eigenen Zuhause
- Fernwärme- und Photovoltaikanlage – energieeffiziente und nachhaltige Energieversorgung
- Fußbodenheizung für ein durchgehend behagliches Raumklima
- Holz-Alu-Fenster mit dreifacher Verglasung und Raffstore-Beschattungssystem
- 2 Tiefgaragenstellplätze und 1 Freistellplatz
- Kellerabteil mit 8 m² für zusätzlichen Stauraum
- Tourismusregion Wildkogel Arena im Nationalpark Hohe Tauern: hoher Freizeitwert zu jeder Jahreszeit – im Winter mit bestens präparierten und schneesicheren 75 Pistenkilometern, der längsten beleuchteten Rodelbahn der Welt, und im Sommer mit vielfältigen Aktivitäten wie Wandern, Biken und abwechslungsreichen Nationalpark-Ausflügen
Kaufpreis:
- Wohnung: € 799.000,-
- zzgl. 2 TG-Stellplätze: á 28.000,-
- zzgl. 1 Freistellplatz: 10.000,-
- Kaufpreis gesamt: € 865.000,-
Wohnen in einer der schönsten Natur- und Urlaubsdestinationen
Die Lage dieser Penthouse-Wohnung verbindet naturnahes Wohnen mit den Vorzügen einer etablierten Urlaubsregion. Nahversorgung, Gastronomie sowie Sport- und Freizeiteinrichtungen befinden sich in bequemer Reichweite und bieten hohe Lebensqualität.
Die Wildkogel Arena im Nationalpark Hohe Tauern garantiert ganzjährig außergewöhnlichen Freizeitwert – von 75 schneesicheren Pistenkilometern und der längsten beleuchteten Rodelbahn im Winter bis zu vielfältigen Wander-, Bike- und Nationalpark-Erlebnissen im Sommer. Der Tauernradweg vor der Haustür rundet das attraktive Umfeld ab.
Weitere Informationen und Besichtigungen
Richard Pirnbacher steht Ihnen unter +43 (0)664 619 08 11 für alle weiteren Informationen und Besichtigungstermine gerne zur Verfügung.
Selbstverständlich ist unsere Tätigkeit vorab kostenlos und vorspesenfrei. Bei Zustandekommen eines rechtskräftigen Kaufvertrages erhalten wir die tarifmäßige 3%ige Vermittlungsprovision zuzüglich 20% USt. Irrtümer vorbehalten.
Wohnen in einer der schönsten Natur- und Urlaubsdestinationen
Die Lage dieser Penthouse-Wohnung verbindet naturnahes Wohnen mit den Vorzügen einer etablierten Urlaubsregion. Alle Einrichtungen des täglichen Bedarfs – von Nahversorgung über Gastronomie bis hin zu Sport- und Freizeiteinrichtungen – sind bequem erreichbar und unterstreichen die hohe Lebensqualität des Standorts.
Besonders attraktiv ist die Lage in der Tourismusregion Wildkogel Arena im Nationalpark Hohe Tauern. Die Region bietet einen außergewöhnlich hohen Freizeitwert zu jeder Jahreszeit: Im Winter erwarten Sie bestens präparierte und schneesichere 75 Pistenkilometer sowie die längste beleuchtete Rodelbahn der Welt. Im Sommer laden zahlreiche Wanderwege, abwechslungsreiche Bike-Strecken und vielfältige Nationalpark-Ausflüge zu spannenden Erlebnissen ein. Zusätzlich liegt der beliebte Tauernradweg direkt vor der Haustür und bietet ideale Voraussetzungen für ausgedehnte Radtouren entlang einer der schönsten Radstrecken der Alpen.
Nähere Informationen zu diesem Objekt














