Valkenauerstraße W5
Objektdaten
PLZ: 5026
Baujahr: 2026
Zustand: Erstbezug, Fertigstellung Sommer 2026
Terrasse: 115 m²
Parkplatz: Tiefgarage
Objektdetails
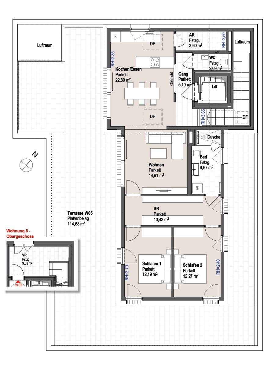
Wohnfläche: 99.53 m²Barrierefrei: Ja
Schlafzimmer: 2
Lift: 1
Fahrradraum: 1
Kellerfläche: 21.94 m²
Heizung: Fernwärme, PV-Anlage
Heizungsart: Fußbodenheizung
Boden: Parkett, Fliesen
Küche: Geräteanschlüsse vorhanden, Wasseranschlüsse vorbereitet
Bad: Badewanne, WC separat
Allgemein: Raffstore-Beschattungssystem
HWB: 33
fGEE: 0.73
Provisionsfrei: Ja
Bilder
Exklusives Wohnen in begehrter Lage
Freuen Sie sich auf exklusives Wohnvergnügen in begehrter Lage in Salzburg-Aigen. Das Premium-Neubauprojekt "Valkenauerstraße" liegt in ruhiger Lage vis-a-vis des Landschaftsschutzgebiets Aigner Au und in unmittelbarer Nähe zur Salzach.
Ein wahres Immobilien-Juwel ist diese Premium Penthouse-Wohnung mit großer Dachterrasse. Mit dem Lift gelangen Sie bequem von der hauseigenen Tiefgarage direkt in Ihre Wohnung. Das Penthouse ist perfekt auf den gehobenen Geschmack abgestimmt und die weitläufige 113 m² Dachterrasse bietet eine Vielzahl an Gestaltungsmöglichkeiten für eine individuelle Wohlfühloase im Freien.
Premium Wohnvergnügen im Überblick:
- Premium Penthouse-Wohnung mit ca. 99 m² Wohnfläche
- 115 m² großer Dachterrasse mit einer Vielzahl an Gestaltungsmöglichkeiten
- individuelle Premium-Ausstattung wie zum Beispiel: hochwertiger Markenparkettboden und elegantes Feinsteinzeug, stilvolle Sanitärausstattung, funkferngesteuertes Raffstore-Beschattungssystem und vieles mehr...
- qualitative und energieeffiziente Bauweise
- Fernwärme-Heizanlage & Photovoltaikanlage
- hauseigene Tiefgarage und Lift bis in jede Etage
- 21 m² großes Kellerabteil für extra viel Stauraum
- familiäre Atmosphäre - nur 5 Wohnungen im Haus
- exklusive Lage in unmittelbarer Nähe zur Salzach
- sehr gute Verkehrsanbindung, kurzer Weg zur Altstadt, hervorragende Infrastruktur
- Baustart erfolgt! Fertigstellung Sommer 2026
Kaufpreis:
Kaufpreis Wohnung W5: € 1.470.300,-
Kaufpreis 2 TG-Plätze: € 79.800,-
Kaufpreis gesamt: € 1.550.100,-
.
Exzellente Lage in Salzburg - Aigen
Idyllisch am Fuße des Gaisbergs gelegen, gilt der Stadtteil Aigen als eine der begehrtesten und exklusivsten Wohngegenden in Salzburg. Das Projekt "Valkenauerstraße" liegt in ruhiger Lage vis-a-vis des Landschaftsschutzgebiets Aigner Au und in unmittelbarer Nähe zur Salzach. Die exzellente Lage bietet Ihnen neben einer hervorragenden Infrastruktur und einen kurzen Weg in die Altstadt zugleich eine wunderbare Naturnähe. Darüber hinaus profitieren Sie durch die verkehrsgünstige Lage von kurzen Wegen im Alltag und in der Freizeit.
Leitgöb Wohnbau - Mit Sicherheit die beste Wahl
Mit Leitgöb Wohnbau entscheiden Sie sich für einen der führenden gewerblichen Bauträger als Ihren starken Partner. Gemeinsam mit unseren Tochterfirmen Leitgöb Bauprojekt, Capital & Projekt sowie der Leitgöb Hausverwaltung begleiten wir Sie in allen Etappen Ihres persönlichen Wohntraums. Als Träger des Salzburger Landeswappens vereinen wir über 30 Jahre Erfahrung mit wirtschaftlicher Stabilität und stehen für ein Höchstmaß an Sicherheit.
Gleich unverbindlich informieren
Entscheiden auch Sie sich für Ihre Traumwohnung aus erster Hand und investieren Sie in Ihre Zukunft mit einer qualitativen Immobilie von Leitgöb Wohnbau. Vereinbaren Sie noch heute einen unverbindliche Beratungstermin unter +43 (0)662 88 22 13 oder nutzen Sie das Anfrageformular.
.
Exzellente Lage in Salzburg - Aigen
Idyllisch am Fuße des Gaisbergs gelegen, gilt der Stadtteil Aigen als eine der begehrtesten und exklusivsten Wohngegenden in Salzburg. Das Projekt "Valkenauerstraße" liegt in ruhiger Lage vis-a-vis des Landschaftsschutzgebiets Aigner Au und in unmittelbarer Nähe zur Salzach. Die exzellente Lage bietet Ihnen neben einer hervorragenden Infrastruktur und einen kurzen Weg in die Altstadt zugleich eine wunderbare Naturnähe. Darüber hinaus profitieren Sie durch die verkehrsgünstige Lage von kurzen Wegen im Alltag und in der Freizeit.
Nähere Informationen zu diesem Objekt














