"Daheim" II. - Doppelhaushälfte #1
Objektdaten
PLZ: 5640
Nutzfläche: 140.9 m²
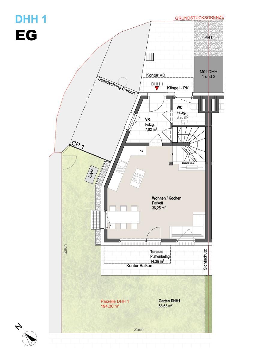
Garten: 68.68 m²
Terrasse: 14.36 m²
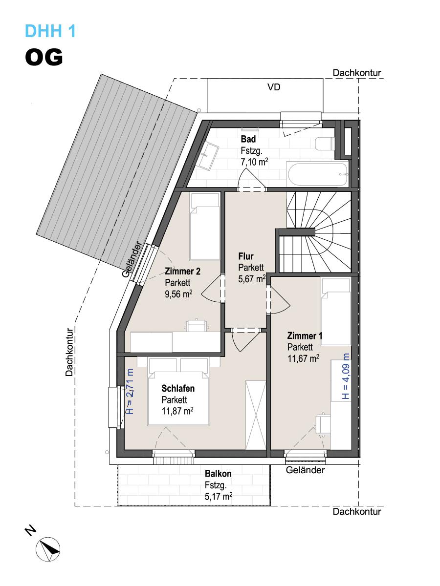
Balkon: 5.17 m²
Parkplatz: Carport, Freiplatz
Objektdetails
Wohnfläche: 92.49 m²Schlafzimmer: 3
Toiletten: 2
Anzahl Balkone: 1
Kellerfläche: 48.41 m²
Heizung: Luftwärmepumpe mit PV-Anlage
Heizungsart: Fußbodenheizung
Boden: Parkett, Fliesen
Küche: Anschlüsse vorbereitet
Bad: Badewanne, Handtuchheizkörper
Provisionsfrei: Ja
Bilder
Ihr neues "Daheim" in Bad Gastein
Diese komfortable Doppelhaushälfte bei unserem Wohnbauprojekt "Daheim" II. in Bad Gastein verbindet modernes Wohnen mit einem hohen Freizeit- und Erholungswert. Ein privater Garten mit Terrasse, ein Balkon sowie ein großzügiger Kellerraum bieten viel Platz zum Leben und Wohlfühlen – ideal für Familien und alle, die Wert auf zusätzlichen Raum legen.
Hochwertige Materialien und komfortable Ausstattungsdetails schaffen ein Wohnumfeld, das den Ansprüchen moderner Neubauten gerecht wird. Eine effiziente Luftwärmepumpe in Kombination mit einer Photovoltaikanlage sorgt zudem für nachhaltige Energieversorgung und niedrige Betriebskosten.
Im Überblick:
- Doppelhaushälfte mit ca. 92 m² Wohnfläche und 141 m² Nutzfläche
- nach Südwesten ausgerichteter Privatgarten mit teilüberdachter Terrasse und Balkon
- großzügige Raumhöhen im Obergeschoss von bis zu 3,6 Metern
- 1 Carport- und 1 Freistellplatz
- hochwertige Ausstattungsdetails, wie stilvolle Parkettböden in den Wohn- & Schlafräumen, einzelraumregulierte Fußbodenheizung, designschöne Sanitärausstattung, Dreifach-Isolierverglasung, bedarfsgerechte Wohnraumbelüftung und vieles mehr
- umweltschonende Luft-Wärmepumpe und Photovoltaikanlage
- niedrige Betriebskosten (=> keine Kosten für Hausbetreuung & -verwaltung)
- Hohe Wohnbauförderung möglich! Z.B. € 72.000 Direktzuschuss für Jungfamilien und monatliche Unterstützung bei der Kreditrückzahlung
Ihr neues Zuhause errichten wir in qualitativer und nachhaltiger Bauweise und schaffen für Sie einen Lebensmittelpunkt zum Wohlfühlen. Entscheiden Sie sich für Wohnqualität aus erster Hand von Leitgöb Wohnbau.
Einzigartiger Charme und hoher Freizeitwert
Bad Gastein vereint alles, was man im Alltag braucht, mit außergewöhnlicher Lebensqualität. Historischer Glanz, moderner Chic und beeindruckende Naturschauspiele prägen den bekannten Kur- und Urlaubsort. Die Wohnungen und Reihenhäuser liegen nahe der Gasteiner Ache mit Blick auf die Bergwelt der Hohen Tauern. Rad- und Wanderwege befinden sich direkt vor der Haustür, Einkaufsmöglichkeiten sind fußläufig erreichbar. Ein verkehrsgeschützter Schulweg, ein ausgezeichnetes Kinderbetreuungsangebot sowie zahlreiche Freizeit- und Sporteinrichtungen – inklusive der Skipisten der Ski amadé – sorgen für hohe Lebens- und Freizeitqualität.
Gleich unverbindlich informieren
Investieren Sie in Ihre Zukunft und sichern Sie sich Ihren Wohntraum von Leitgöb Wohnbau. Vereinbaren Sie noch heute einen unverbindliche Beratungstermin unter +43 (0)6582 70203 oder nutzen Sie das Anfrageformular.
Einzigartiger Charme und hoher Freizeitwert
Bad Gastein vereint alles, was man im Alltag braucht, mit außergewöhnlicher Lebensqualität. Historischer Glanz, moderner Chic und beeindruckende Naturschauspiele prägen den bekannten Kur- und Urlaubsort. Die Wohnungen und Reihenhäuser liegen nahe der Gasteiner Ache mit Blick auf die Bergwelt der Hohen Tauern. Rad- und Wanderwege befinden sich direkt vor der Haustür, Einkaufsmöglichkeiten sind fußläufig erreichbar. Ein verkehrsgeschützter Schulweg, ein ausgezeichnetes Kinderbetreuungsangebot sowie zahlreiche Freizeit- und Sporteinrichtungen – inklusive der Skipisten der Ski amadé – sorgen für hohe Lebens- und Freizeitqualität.
Nähere Informationen zu diesem Objekt














